
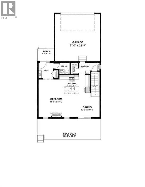
For more information, please click the "More Information" button. Welcome to Lot 42 at 316 Flare Avenue SW in the thoughtfully planned community of Diamond Ridge in Diamond Valley. The Kincaid 4 custom home offers refined two-storey living with a smart, family-focused layout, abundant natural light, and carefully selected finishes that balance function and style. This distinctive four-bedroom, 2.5-bathroom home offers 1,798.4 sq. ft. of developed living space, including 750.6 sq. ft. on the main level and 1,047.8 sq. ft. on the upper level, plus an undeveloped basement providing excellent opportunity for future customization. Large windows throughout create a bright and welcoming atmosphere, while the layout feels open yet thoughtfully defined—ideal for both everyday living and entertaining. The main floor features 9’ ceilings and a seamless connection between the Great Room, dining area, and kitchen. The kitchen is anchored by a large island with breakfast bar and complemented by stone countertops, soft-close cabinetry, a premium LG appliance package, and a convenient pantry for added storage. The foyer offers a welcoming entry point, while a well-designed mudroom with direct access to the attached garage enhances daily convenience. A main floor half bathroom completes this level. Upstairs, 8’ ceilings with engineered wood truss construction create a clean and functional upper level. The second floor features four bedrooms, including a spacious primary retreat with a four-piece ensuite and walk-in closet. A three-piece bathroom serves the additional bedrooms, offering comfortable accommodation for family or guests. The home also benefits from rear lane access, adding flexibility and long-term practicality. Situated in Diamond Ridge, residents enjoy close proximity to local shops, cafés, schools, parks, pathway systems, and access to the Sheep River and regional trail networks. Convenient connections to Okotoks and south Calgary provide an ideal balance of small-to wn charm and accessibility. Estimated completion is scheduled for Summer 2026. Photos are for illustrative purposes only. (id:25325)
| MLS® Number | A2287940 |
| Property Type | Single Family |
| Amenities Near By | Schools, Shopping |
| Features | Back Lane |
| Parking Space Total | 4 |
| Plan | 2511910 |
| Structure | Deck, Porch |
| Bathroom Total | 3 |
| Bedrooms Above Ground | 4 |
| Bedrooms Total | 4 |
| Appliances | Washer, Refrigerator, Dishwasher, Stove, Oven, Dryer, Microwave, Freezer, Water Heater - Tankless |
| Basement Development | Unfinished |
| Basement Type | Full (unfinished) |
| Constructed Date | 2026 |
| Construction Style Attachment | Detached |
| Cooling Type | None |
| Exterior Finish | Composite Siding |
| Fireplace Present | Yes |
| Fireplace Total | 1 |
| Flooring Type | Vinyl |
| Foundation Type | Poured Concrete |
| Half Bath Total | 1 |
| Heating Fuel | Natural Gas |
| Heating Type | Forced Air |
| Stories Total | 2 |
| Size Interior | 1,798 Sqft |
| Total Finished Area | 1798.4 Sqft |
| Type | House |
| Attached Garage | 2 |
| Parking Pad |
| Acreage | No |
| Fence Type | Partially Fenced |
| Land Amenities | Schools, Shopping |
| Landscape Features | Landscaped |
| Size Depth | 36.27 M |
| Size Frontage | 13.72 M |
| Size Irregular | 5331.40 |
| Size Total | 5331.4 Sqft|4,051 - 7,250 Sqft |
| Size Total Text | 5331.4 Sqft|4,051 - 7,250 Sqft |
| Zoning Description | R1 |
| Level | Type | Length | Width | Dimensions |
|---|---|---|---|---|
| Second Level | Primary Bedroom | 14.33 Ft x 12.17 Ft | ||
| Second Level | Bedroom | 10.33 Ft x 10.33 Ft | ||
| Second Level | Bedroom | 10.25 Ft x 11.67 Ft | ||
| Second Level | Bedroom | 10.33 Ft x 9.67 Ft | ||
| Second Level | 4pc Bathroom | .00 Ft x .00 Ft | ||
| Second Level | 3pc Bathroom | .00 Ft x .00 Ft | ||
| Main Level | Kitchen | 14.67 Ft x 10.08 Ft | ||
| Main Level | Living Room | 19.00 Ft x 18.00 Ft | ||
| Main Level | Dining Room | 10.00 Ft x 10.00 Ft | ||
| Main Level | 2pc Bathroom | .00 Ft x .00 Ft |
https://www.realtor.ca/real-estate/29385039/316-flare-avenue-sw-diamond-valley
No Favourites Found
The trademarks REALTOR®, REALTORS®, and the REALTOR® logo are controlled by The Canadian Real Estate Association (CREA) and identify real estate professionals who are members of CREA. The trademarks MLS®, Multiple Listing Service® and the associated logos are owned by The Canadian Real Estate Association (CREA) and identify the quality of services provided by real estate professionals who are members of CREA. The trademark DDF® is owned by The Canadian Real Estate Association (CREA) and identifies CREA's Data Distribution Facility (DDF®)

The trademarks REALTOR®, REALTORS® and the REALTOR® logo are controlled by The Canadian Real Estate Association (CREA) and identify real estate professionals who are members of CREA. Used under license. The trademarks MLS®, Multiple Listing Service® and the associated logos are owned by The Canadian Real Estate Association (CREA) and identify the quality of services provided by real estate professionals who are members of CREA. Used under license.